• Home
  • Team
  • Portfolio
  • Partners
  • Contact
  • Links
  • Home
  • Team
  • Portfolio
  • Partners
  • Contact
  • Links

1998 GVA

Tags / COMPENSATION BOARD, OWNERSHIP MANAGEMENT, PAU - Urban Development Program, PP - Partial Planning, URBAN PLANNING MANAGEMENT
  • ACTION
  • MANAGEMENT
  • CLIENT
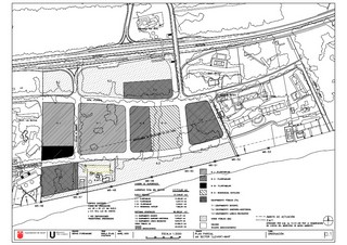
    • PAU PP Llevant Mar
    • Gavà
    • Ownership & Urban Management
    • Location and land proposal
    • Management and planning coordination
    • Marketing Management
    • Vivendes Casado, S.L.
    • Hotel & Residential Condominium Sector

Related Portfolio

2014 BCN MNA

BARTER, MARKETING MANAGEMENT, OWNERSHIP MANAGEMENT

2011 L’HO RBM

ACTIVITIES AND OCCUPANTS MANAGEMENT, OWNERSHIP MANAGEMENT, URBAN PLANNING MANAGEMENT

2010 BCTRO

COORDINATION AND PROCEDURES MONITORING, MARKETING MANAGEMENT, URBAN PLANNING MANAGEMENT

2007 L’H EUR

MARKETING MANAGEMENT, OWNERSHIP MANAGEMENT, RESIDENTIAL, URBAN PLANNING MANAGEMENT
| Copyright © 2014 JL Urban Dynamics |
| Web Design JL Urban Dynamics |